Floor Plans
THE BASEMENT FLOOR PLAN
The basement of the WinnersVille Multiplex is designed for Car parking with a capacity for 44 Cars to be conveniently parked. It also houses the Facility Manager’s Office, the Control room and Storage Rooms. It is designed in a way that ensures controlled noise and elimination of distraction of activities in the other floors of the building.
Ground Floor
The ground floor of the WinnersVille Multiplex has the Multi Purpose Hall, the banking Hall, the Reception area, the toilets for the Multi purpose Hall and the Storage and Control Rooms. There are also car parking lots on the ground floor. All spaces are well positioned to allow for easy flow of foot traffic and to avoid undue conflict of access to both the business area and the event centre.
1st Floor
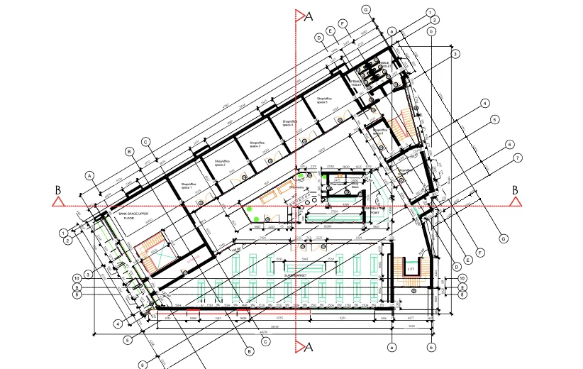
The First Floor of the Multiplex has the offices of the Bank, a Supermarket, a large pharmacy Shop and Seven other sizeable shops or offices for various purposes. There are also designated male and Female toilets to provide convenience for staff and shoppers alike.
2nd Floor
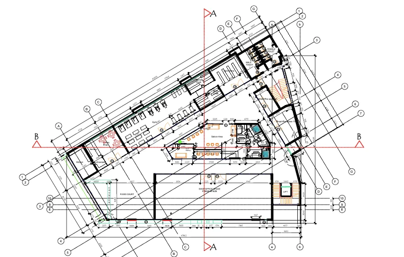
The Second Floor is designed to accommodate the following:
a large and premium office space with two other sizeable office spaces
a large saloon area with spa and VIP service points
a Sport Shop and a Gym
a food court and a bakery shop for meals and snacking purposes.
Also the male and female toilets to cater to the staff workers and shoppers.
3rd Floor
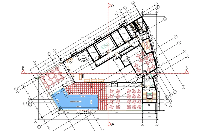
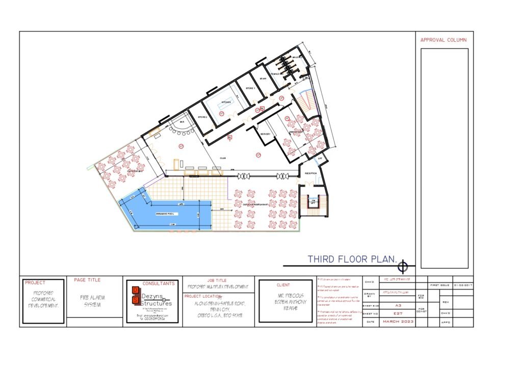
The third Floor is designed to offer premium relaxation and hospitality services with the following designated Spaces;
Indoor and Outdoor Restaurants
Indoor and Outdoor Bars
A Club House and a Swimming Pool